Skip to main content

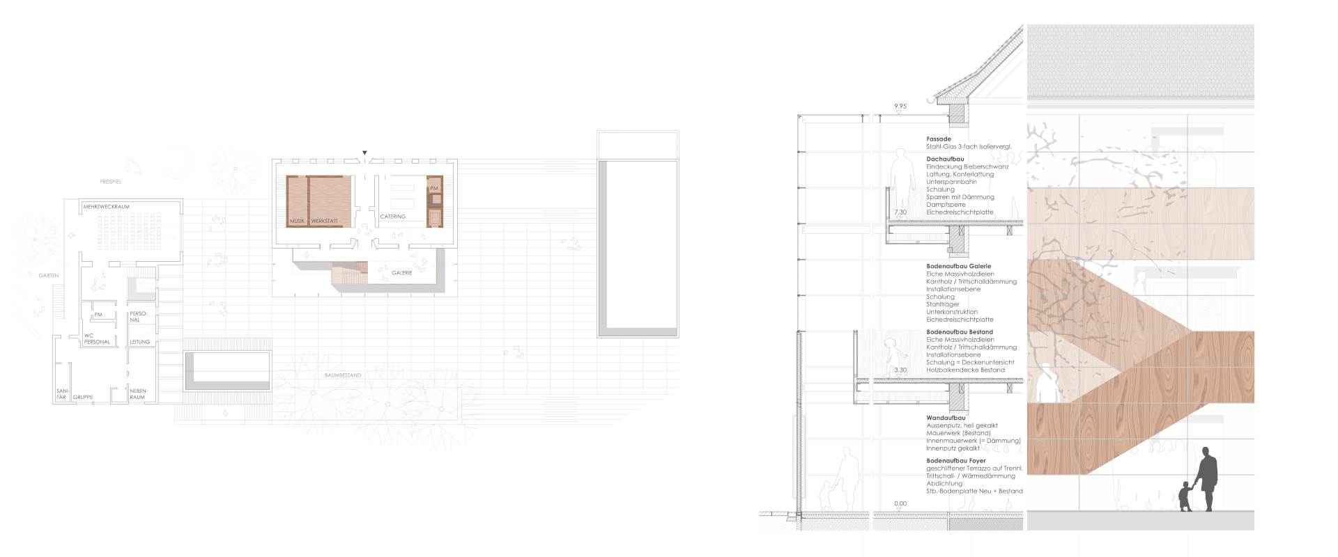
Bürgerhaus Wellen

Bürgerhaus Wellen

Maßnahme: Neubau eines Bürgerhauses sowie Neuschaffung eines Dorfplatzes

Typologie: Neubau, Kulturstätte

Bauherr: Ortsgemeinde Wellen

Standort: Wellen

© Copyright hjparchitekten