Skip to main content

Rathaus Höchberg

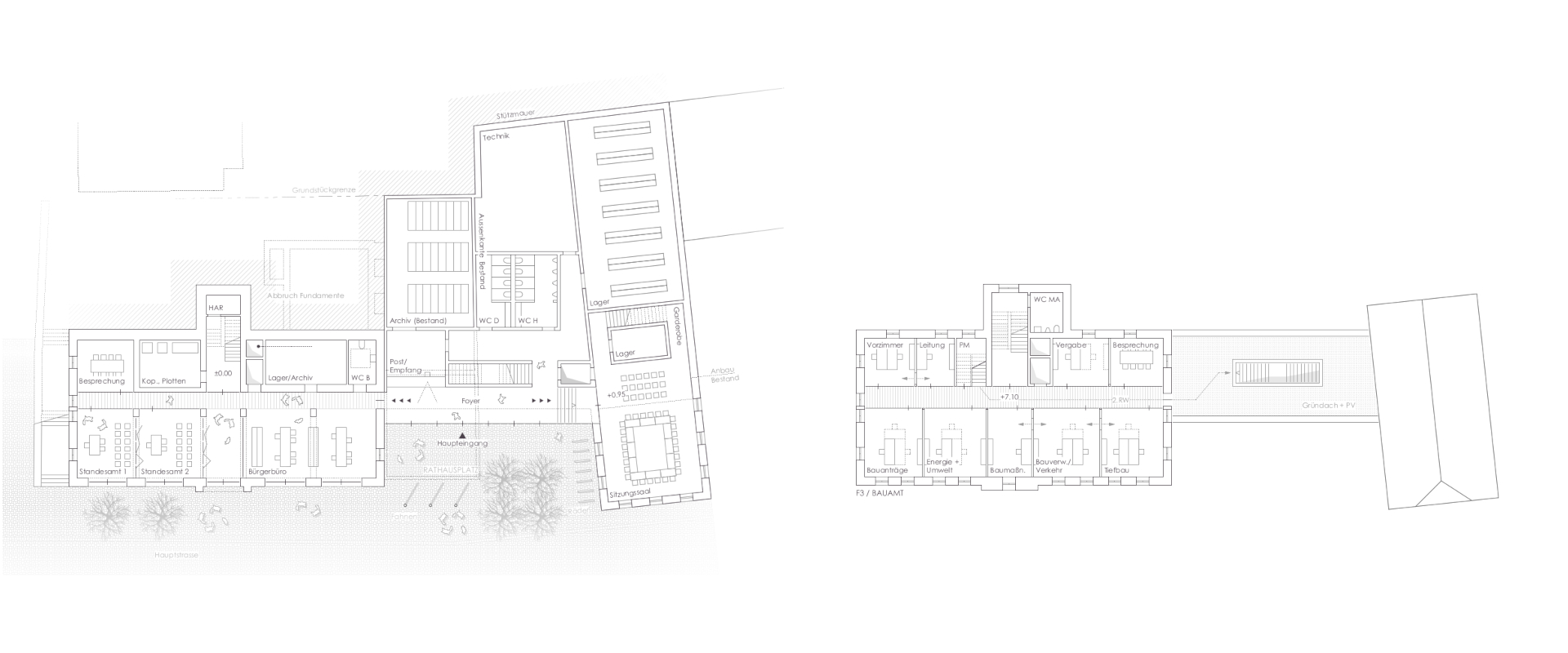
Maßnahme: Sanierung und Erweiterung Rathaus Markt Höchberg

Typologie: Kulturstätte

Bauherr: Markt Höchberg

Standort: Höchberg

© Copyright hjparchitekten